Offre immobilière N°
					06006957
					2145
				
				Terrain constructible
				06690 TOURRETTE LEVENS
				Prix : 209 000 €  *
					Montant du bouquet : 209 000 €  *
					- Pièce(s) : NC
- Chambre(s) : NC
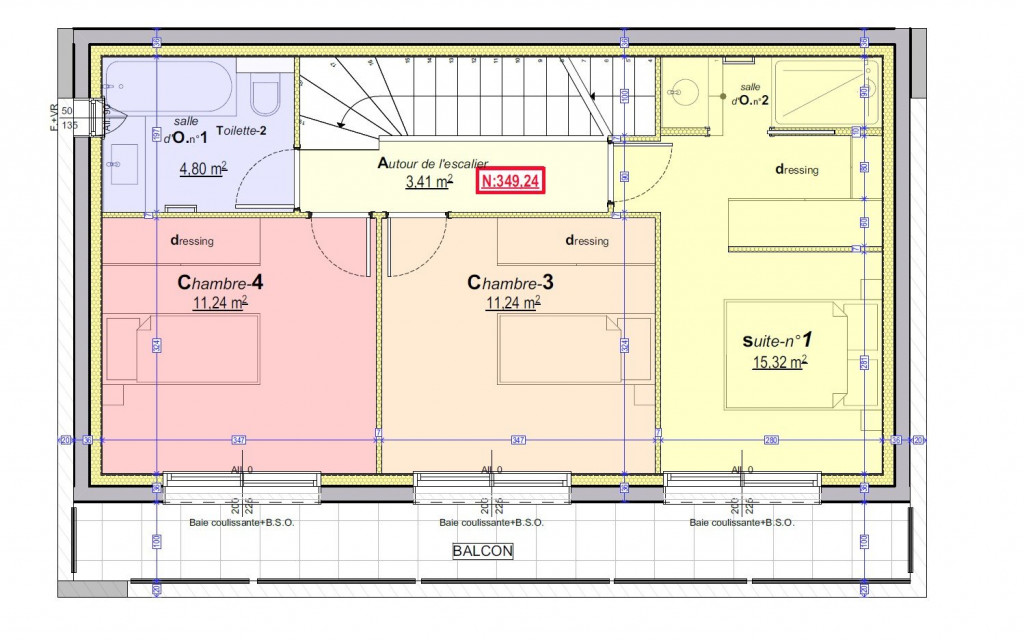
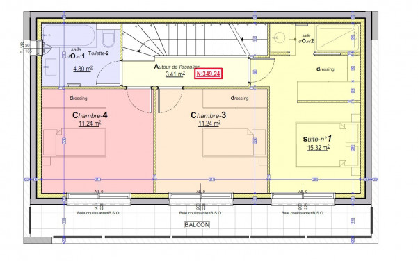
- Surface Habitable : NC
- Surface Terrain : 652 m²
TOURRETTE-LEVENS
**EXCLUSIVITE**
Quartier Famajor
Exposition sud pour ce terrain plat de 652 m² 
Situé en zone UFC1 du Plum 
CES 10 %. 
Viabilités à proximité - Proche de toutes commodités
Permis de construire accordé.
« Les informations sur les risques auxquels ce bien est exposé sont disponibles sur le site Géorisques : www.georisques.gouv.fr » 
Prix : 209 000 €
Contact Dally BERMOND – GRANIT Immobilier 04.93.79.87.83 / 06.11.16.01.42
Réf.2145
Honoraires charge vendeur – Nos tarifs : https://assets.adaptimmo.com/bareme/06006/bareme.pdf
Les informations sur les risques auxquels ce bien est exposé sont disponibles sur le site Géorisques
* Honoraires charge vendeur.


























 Agrandir
Agrandir













 
					